
کارگاه کانال سازی هادیلو
پروانه کسب
شهر قدس
21 نظر5
جدول قیمتنظرهااطلاعات متخصصگالری تصاویر
نظرها
تعداد نظر215
4
3
2
1
5
درباره من
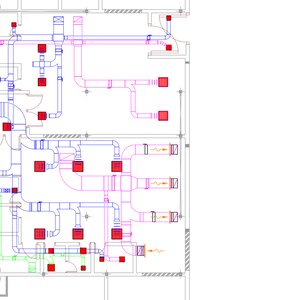
سلام.در راستای خدمت به هموطنان عزیز،اقدام به حضور در این سایت جهت معرفی خدمات خود در خصوص طراحی ،ساخت ونصب کانالهای گرد وچهار گوش درچهارچوب نقشه و استانداردهای مهندسی برای سیستمهای تهویه مطبوع و حرارتی و برودتی ورستوران وآشپزخانه'اداره جات،سازمانها،کارخانه ها،کارگاهها و مجتمع های تجاری،اداری ومسکونی ومنازل شخصی نموده ایم.لذا در صورت اهمیت دادن به استانداردواصولی بودن سفارشتان والبته مناسب شدن هزینه خدمات موردنیازتان، حتمآ با ما تماس بگیرید.ارائه انواع خدمات در قیمتهای متفاوت ،بنا به درخواست مشتری،تخصص ماست. کیفیت عالی+قیمت مناسب=رضایت مشتریان ،اصلی ترین هدف ماست۰۹۱۲۲۸۹۰۴۸۸-هادیلو
تخصص های کارگاه کانال سازی هادیلو
گالری تصاویر






















































































































































